504sf concessions lease OPPORTUNITY
at building 16 in santa ana
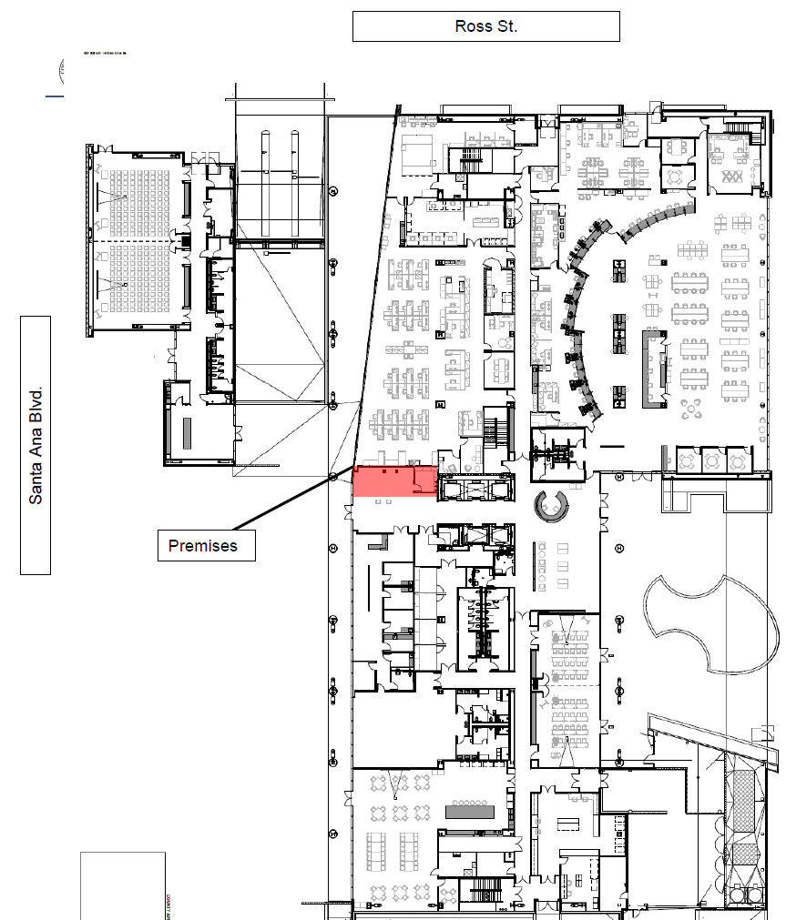
The County is leasing a 504 sqft area inside the County’s newly constructed building, located at 601 N. Ross, Santa Ana, CA (Premises) and scheduled to open August 2019. The vision for the Premises is to provide a benefit to employees and County customers by providing an onsite food and/or beverage option provided through a concessionaire. Concepts similar to a coffee, juice, or sandwich bar are welcome, as well as vending facilities.
The new building is part of a multiphase building project that will see its sister building, Building 14 , open in 2022. Once constructed, the two buildings will house over 1,500 County employees. The first building will house approximately 950 employees and the second building will house approximately 650 employees. The first building is the only building planned to provide any kind of food service.
RFP AND SUPPORTING DOCUMENTS
Please click the download button above in order to download all files related to this RFP.
Please allow some time as the file may be quite large.
List of Files
Building 16 Concessions RFP
Form Lease
